Como Construir Kitnets para Renda Passiva: Projeto Completo com Planta Baixa
Se você quer começar a investir em imóveis e gerar renda passiva todos os meses, esse tipo de projeto pode ser um divisor de águas.
Neste artigo, vou te mostrar um projeto real de kitnets multifamiliares, com planta baixa, divisão inteligente dos espaços e estratégias que você pode aplicar para construir o seu próprio empreendimento.
Esse é o mesmo modelo que estou desenvolvendo com foco em geração de renda com aluguel.
Visão Geral do Projeto
O projeto consiste em uma unidade habitacional multifamiliar com dois pavimentos, construída em um terreno de aproximadamente 484 m², com área total construída de 320,78 m²

A proposta foi pensada para maximizar o aproveitamento do terreno, reduzir custos e aumentar o retorno financeiro.
Principais características:
- Dois pavimentos
- Oito apartamentos no total
- Seis unidades com um quarto
- Duas unidades com dois quartos
- Layout otimizado para aluguel
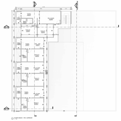
Estrutura do Projeto (Planta Baixa)
Pavimento Térreo
A planta térrea apresenta uma distribuição eficiente das unidades, com ambientes compactos e funcionais.
Cada apartamento foi projetado com:
- Sala integrada
- Cozinha funcional (média de 5,40 m²)
- Banheiro (aproximadamente 3,2 m²)
- Dormitório principal (cerca de 9,5 m²)
- Área de serviço (em torno de 2,5 m²)
A organização dos espaços permite boa circulação e aproveitamento máximo da área construída.

Pavimento Superior
No pavimento superior, o padrão se repete com pequenas adaptações, mantendo a padronização do projeto.
Essa repetição estrutural traz vantagens importantes:
- Redução de custos com execução
- Facilidade na obra
- Padronização de materiais
- Maior velocidade de construção

Quantidade de Unidades e Estratégia
O projeto foi desenvolvido com oito apartamentos no total, sendo:
- Seis unidades com um quarto
- Duas unidades com dois quartos
Essa variação é estratégica, pois permite atender diferentes perfis de moradores, como solteiros, casais e pequenas famílias.
Do ponto de vista financeiro, isso aumenta a ocupação e reduz o risco de vacância.
Exemplo de potencial de renda:
Se cada unidade for alugada por valores médios entre R$700 e R$1.000, o projeto pode gerar uma receita mensal relevante e previsível.
Detalhes Técnicos Importantes
De acordo com o projeto:
Portas:
- 36 unidades no total
- Padrão em MDF com dimensões de 0,80 m e 0,60 m
Janelas:
- 34 unidades
- Vidro temperado, favorecendo ventilação e iluminação natural
Materiais Utilizados
O projeto adota um padrão construtivo equilibrado entre custo e durabilidade:
- Alvenaria com tijolos cerâmicos
- Reboco em argamassa de cimento e areia
- Pintura látex (PVA ou acrílica)
- Piso cerâmico tipo A
- Forro em gesso acartonado
Esse conjunto permite manter qualidade sem elevar excessivamente o custo da obra.
Principais Desafios ao Construir Kitnets
Antes de iniciar um projeto como esse, é importante considerar alguns pontos críticos:
Planejamento financeiro
É fundamental ter clareza sobre o custo total da obra para evitar interrupções.
Mão de obra
Falta de padronização pode gerar retrabalho e prejuízo.
Legalização
O projeto exige acompanhamento técnico, aprovação na prefeitura e responsabilidade de um engenheiro.
Distribuição dos espaços
Um layout mal planejado impacta diretamente na valorização do aluguel.
Estratégias Utilizadas no Projeto
O projeto segue uma lógica clara de otimização:
Padronização
Unidades semelhantes reduzem custo e facilitam execução.
Compactação inteligente
Ambientes menores, porém funcionais e bem distribuídos.
Verticalização
Dois pavimentos permitem maior aproveitamento do terreno.
Ventilação e iluminação
Uso estratégico de janelas melhora o conforto dos moradores.
Por Que Kitnets São Um Bom Investimento
Esse modelo é amplamente utilizado por investidores por alguns motivos:
- Alta demanda por unidades menores
- Custo de construção reduzido por unidade
- Possibilidade de múltiplas rendas no mesmo imóvel
- Retorno mensal previsível
Como Começar o Seu Projeto
Se você quer iniciar um projeto semelhante, siga esse caminho:
- Escolha um terreno bem localizado
- Contrate um engenheiro
- Desenvolva um projeto otimizado
- Faça o levantamento completo de custos
- Execute a obra por etapas
- Inicie a locação o quanto antes
Conclusão
Construir kitnets pode ser uma estratégia eficiente para geração de renda passiva, desde que o projeto seja bem planejado.
Esse modelo mostra que é possível:
- Maximizar o uso do terreno
- Reduzir custos por unidade
- Gerar renda mensal consistente
O ponto principal é tratar a construção como um negócio, e não apenas como uma obra.

